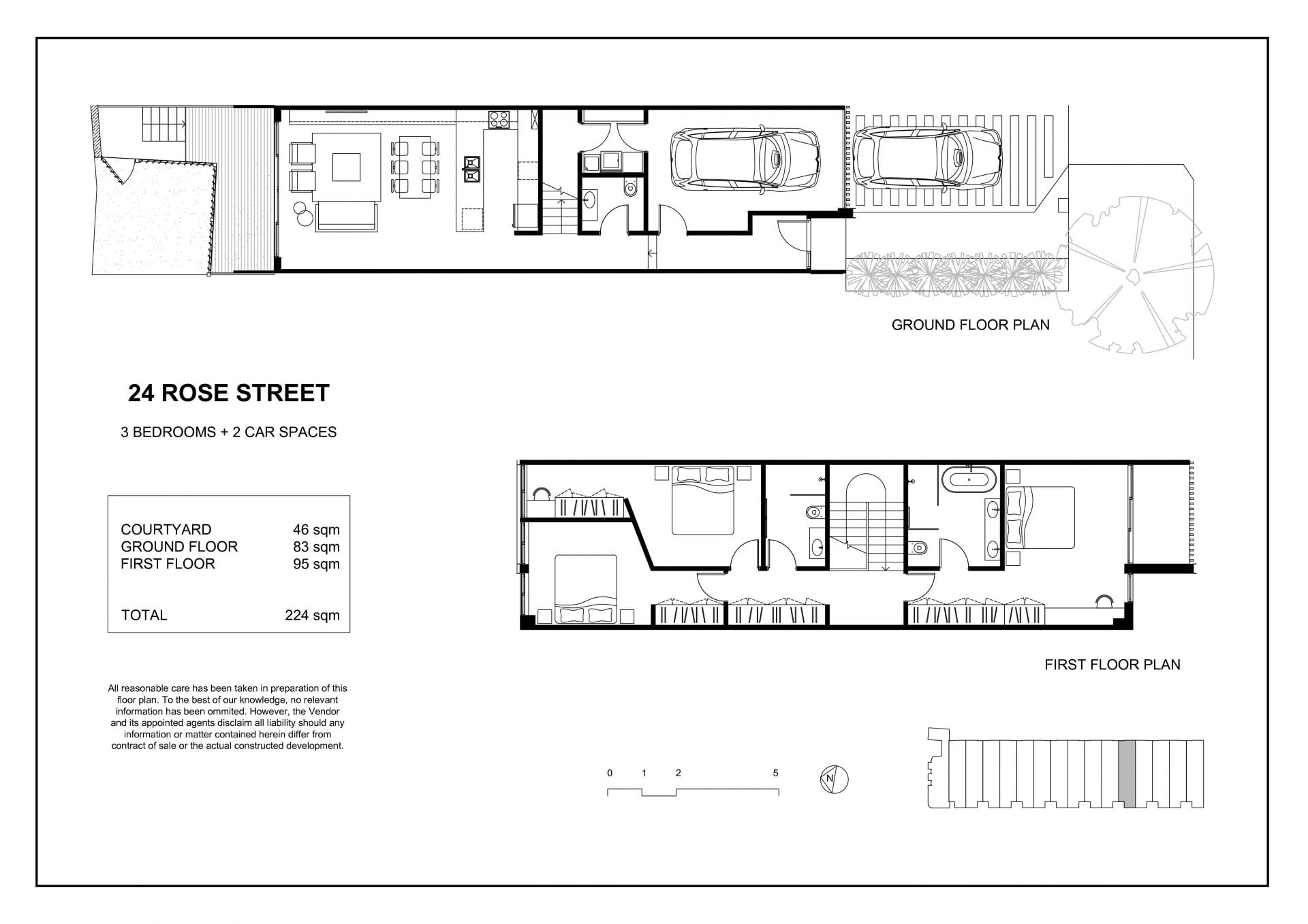
14 Rose Street, Botany
Terrace
BRAND-NEW ARCHITECTURALLY CONCEIVED TERRACE HOMES IN PREMIER VILLAGE SETTING
Architecturally impressive from the onset, these premium dual level terraces highlight light-filled domains, state-of-the-art inclusions and a superior lifestyle offering like no other.
Bespoke inclusions, a flexible floorplan and considered design make for a perfect fusion of contemporary and custom and an effortless indoor-outdoor urban lifestyle.
Overflowing with features and highlighted by the warmth of oak timber floors, soaring ceilings, and a neutral colour palette, each residence includes three generous bedrooms across the accommodations level, custom bathrooms and a designer gourmet kitchen featuring Miele appliances.
Nestled in the ever-popular Botany village within strolling distance of vibrant local cafes, shopping, playgrounds, parklands, beaches and primely positioned within an easy commute of Sydney CBD.
Highlights:
+ Brand new terrace homes ready to move in
+ Stone kitchen, custom cabinetry & full Miele appliance package
+ Oak timber floors to living & wool carpets to upper level
+ Double bedrooms, master with ensuite & terrace
+ Main bathroom with free standing soaking bathtub & separate shower
+ Daikin ducted A/C & ceiling fans throughout
+ Double glazed thermal & acoustic windows and doors
+ Alarm, video intercom & keyless smart entry
+ Feature pendant & LED lighting throughout
+ Lock up garage w/ internal access + storeroom & laundry
+ Soaring ceiling heights up to 5m*
+ Timber decking leading to rear garden
+ 2,000L rainwater tank + pump & water tap
+ Quiet tree lined street moments to village
+ Proven development team with extensive track record
DISPLAY TERRACE LOCATED AT 4 ROSE STREET, BOTANY
Open for inspection as advertised and by-appointment.
Stefan Jones 0422 681 795
Anson Kolb 0403 429 845
365 Property Group
*365 Property Group endeavour to provide purchasers with accurate information, purchasers are to rely on their own enquiries and due diligence.
Bespoke inclusions, a flexible floorplan and considered design make for a perfect fusion of contemporary and custom and an effortless indoor-outdoor urban lifestyle.
Overflowing with features and highlighted by the warmth of oak timber floors, soaring ceilings, and a neutral colour palette, each residence includes three generous bedrooms across the accommodations level, custom bathrooms and a designer gourmet kitchen featuring Miele appliances.
Nestled in the ever-popular Botany village within strolling distance of vibrant local cafes, shopping, playgrounds, parklands, beaches and primely positioned within an easy commute of Sydney CBD.
Highlights:
+ Brand new terrace homes ready to move in
+ Stone kitchen, custom cabinetry & full Miele appliance package
+ Oak timber floors to living & wool carpets to upper level
+ Double bedrooms, master with ensuite & terrace
+ Main bathroom with free standing soaking bathtub & separate shower
+ Daikin ducted A/C & ceiling fans throughout
+ Double glazed thermal & acoustic windows and doors
+ Alarm, video intercom & keyless smart entry
+ Feature pendant & LED lighting throughout
+ Lock up garage w/ internal access + storeroom & laundry
+ Soaring ceiling heights up to 5m*
+ Timber decking leading to rear garden
+ 2,000L rainwater tank + pump & water tap
+ Quiet tree lined street moments to village
+ Proven development team with extensive track record
DISPLAY TERRACE LOCATED AT 4 ROSE STREET, BOTANY
Open for inspection as advertised and by-appointment.
Stefan Jones 0422 681 795
Anson Kolb 0403 429 845
365 Property Group
*365 Property Group endeavour to provide purchasers with accurate information, purchasers are to rely on their own enquiries and due diligence.
